Funkce uživatele
Moje oblíbené nemovitosti Moje oblíbené nemovitosti Moje filtry Moje filtry Upravit profil Upravit profil Vložit inzerát Vložit inzerát
Region
mapa

Cena na dotaz

B

Velmi úsporná

Do oblíbených
Do oblíbených
Nemovitost nabízí
Matěj Ježek

Stěhuju.cz

Kalkulace stěhování do 90 sekund

Malování

Zajištění malíře už od 2.500 Kč

Základní informace

Konstrukce Skeletová
Datum vložení před 8 dny
Plocha užitná 4 870 m²
Parkování Parkování na ulici, Vlastní parkovací stání
Stav nemovitosti Novostavba
Energetická náročnost B - Velmi úsporná
ID nemovitosti N6193
Plocha celková 4 870 m²

Popis nemovitosti

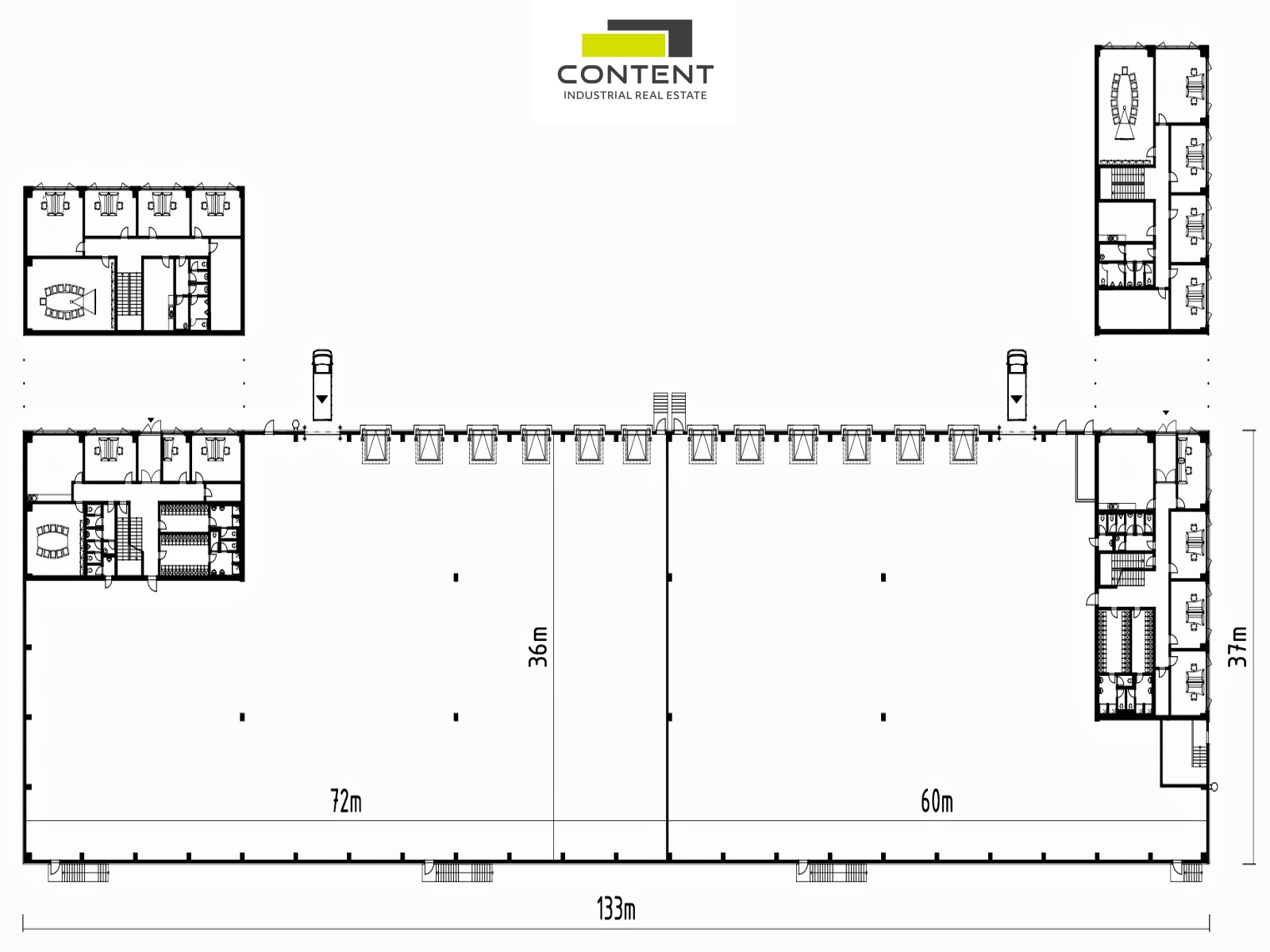
Pronájem skladu, výrobních prostor 4870 m² Plzeň 4- Jateční ulice.

V zastoupení majitele a bez provize nabízíme samostatnou jednotku o výměře 4870 m² v nově vznikajícím areálu Nová Jateční vedle plně obsazeného retail parku Intercora. Areál se nachází vedle frekventované ulice Jateční a zároveň na budoucím východním obchvatu Plzně, což zajišťuje vynikající dopravní dostupnost i obchodní exponovanost.

- 4870 m² dostupných (k dispozici 2Q/2027 – hala B)
- výška prostoru 10 m
- kanceláře a sociální zázemí dle požadavků nájemce
- parkovací místa přímo před jednotkou
- bezprašné podlahy s minimální nosností 5 t/m²
- přímý vjezd z úrovně terénu
- hydraulické rampy
- možnost dispozičních úprav podle potřeb klienta
- lze dělit od cca 1100 m²
- MHD v docházkové vzdálenosti, v areálu plánované nabíjecí stanice
- příjezd a parkování TIR bezproblémové, manipulační a parkovací plochy
- BREAM Excellent
- možnost instalace FVE
- v areálu jsou k dispozici další skladové a obchodní jednotky o velikosti od 570 m² až po 3480 m²

Cena za sklad, prodejnu nebo showroom na dotaz.
V případě zájmu nás kontaktujte, rádi zodpovíme Vaše dotazy.

Poloha na mapě

Dojezdová vzdálenost

Zadejte cílovou adresu
Zadejte cílovou adresu
Zadejte cílovou adresu

Nemovitost nabízí

 Matěj Ježek
Matěj Ježek
Telefon zobrazit telefon

Nemovitost nabízí

 Matěj Ježek
Matěj Ježek
Telefon zobrazit telefon

Podobné nemovitosti

Reklama

Možná se vám bude hodit